新型秸稈纖維混合攪拌機家用小型<技術文獻>
新型秸稈纖維混合攪拌機家用小型技術文獻,河北東圣吊索具制造有限公司專題講解家用小型攪拌機的另外一種形式形態使用方法與用途。
新型秸稈纖維混合攪拌機家用小型技術文獻,河北東圣吊索具制造有限公司專題講解家用小型攪拌機的另外一種形式形態小型攪拌機使用方法與用途。
秸稈纖維混合攪拌機家用小型背景技術:
根據1995年中國公布的統計資料,糧食播種面積16.5億畝,糧食總產量4.67億噸,按粒稈比1∶1.2估算,再加上其他作物秸稈,全國年生產秸稈近6億噸,但在秸稈的利用上由于從前農業生產水平低、產量低,秸稈除少量用于墊圈、喂養牲畜,部分用于堆漚肥外,大部分都作燃料燒掉了。
而燃燒秸稈會引發交通事故,影響道路交通和航空安全。焚燒秸稈形成的煙霧,造成空氣能見度下降,可見范圍降低,直接影響民航、鐵路、高速公路的正常運營,容易引發交通事故,影響人身安全。還會引發火災。秸稈焚燒,極易引燃周圍的易燃物,導致“火燒連營”,一旦引發麥田大火,往往很難控制,造成經濟損失。尤其是在山林附近,后果更是不堪設想。再有焚燒秸稈破壞土壤結構,造成農田質量下降。
秸稈焚燒也入地三分,地表中的微生物被燒死,腐殖質、有機質被礦化,田間焚燒秸稈破壞了這套生物系統的平衡,改變了土壤的物理性狀,加重了土壤板結,破壞了地力,加劇了干旱,農作物的生長因而受到影響。
后還會產生大量有毒有害物質,威脅人與其他生物體的健康。秸稈中含有大量的有機質,氮磷鉀和微量元素,據張夫道等人的統計,豆科作物秸稈含氮較多,禾本科作物秸稈含鉀較豐富,作物秸稈提供的養分約占中國有機肥總養分的13%~19%,是農業生產重要的有機肥源。鑒于造成這些危害以及秸稈所含有的養分所以在秸稈的回收利用上有很多種方法:例如廢舊聚乙烯和植物秸稈粉再生板材或制成高強輕質稻殼灰保溫磚或戶用秸稈氣化爐燃氣灶或秸稈高效全價生物飼料或秸稈立體栽培草腐類食用菌高產新技術等,在這些利用的方法之前要提前把秸稈粉碎。因此移動式小型攪拌機在于能很方便的把秸稈粉碎再次利用。
秸稈纖維混合攪拌機家用小型技術實現要素:
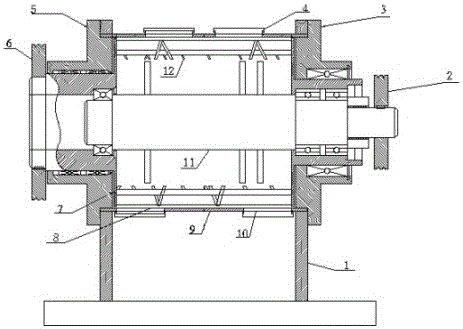
一種新型秸稈纖維混合混合攪拌機家用小型,這種立式攪拌機小型包括機架(1)、小帶輪(2)、右端蓋(3)、進料口(4)、左端蓋(5)、大帶輪(6)、螺旋套(7)、刮板(8)、料斗(9)、出料口(10)、分散軸(11)、鍘刀(12)。其中新型秸稈纖維混合攪拌機的進料口(4)和出料口(10)分別位于機架(1)的上部和下部,料斗(9)在機架(1)的中部,左端蓋(5)和右端蓋(3)固定在機架(1)的左右兩邊,小帶輪(2)固定在料斗(9)中部的分散軸(11)的左側,大帶輪(6)固定在分散軸(11)的右側,鍘刀(12)固定在螺旋套(7)上,螺旋套(7)通過軸承和分散軸連接,刮板(8)位于出料口(10)的上面。新型秸稈纖維混合攪拌機左端蓋(5)和右端蓋(3)通過螺栓固定在機架(1)的左右兩側。
一種新型秸稈纖維混合攪拌機家用小型通過把秸稈、纖維原料攪碎后可以綜合利用制成再生板或用以他用。秸稈纖維混合攪拌機結構簡單、易于操作、運行穩定、需要很少的操作人員大大的減少了人工成本、原料攪碎均勻、機器造價成本低適合農村需求,不僅為農民增加額外的收入還有利于保護環境。不足的有可能是小型攪拌機規格型號較為單一,小攪拌機并不存在大量型號劃分區別。
秸稈纖維混合攪拌機家用小型附圖說明

圖1為一種新型秸稈纖維混合攪拌機的結構示意圖;
圖1中, 1-機架,2-小帶輪,3-右端蓋,4-進料口,5-左端蓋,6-大帶輪,7-螺旋套,8-刮板,9-料斗,10-出料口,11-分散軸,12鍘刀
秸稈纖維混合攪拌機家用小型具體實施方式
一種新型秸稈纖維混合混合攪拌機家用小型,包括機架(1)、小帶輪(2)、右端蓋(3)、進料口(4)、左端蓋(5)、大帶輪(6)、螺旋套(7)、刮板(8)、料斗(9)、出料口(10)、分散軸(11)、鍘刀(12)。原料從機架(1)上面的進料口(4)進入料斗(9),由大帶輪(6)和小帶輪(2)帶動固定在螺旋套(7)上的鍘刀(12),把原料粉碎。分散軸(11)跟隨螺旋套(7)、帶輪一起轉動分散在料斗(9)的原料以便于粉碎均勻。粉碎結束后打開位于機架下方的出料口(10)通過刮板(8)運動把粉碎后的原料運出。
通過以上文章閱讀參照附圖詳細描述,相信您對220V攪拌機家用小型其特征、使用、結構了解更加透徹,了解攪拌機家用小型價格、圖片、使用視頻可聯系專業銷售人員了解更多。
掃描以下二維碼添加微信獲取更多廠家時效信息!
聯系電話:0312-6770968;13933276606 崔經理
趕快來獲取攪拌機家用小型生產廠家一手信息,拒絕中間商,給你批發價格!






